
- Hem
- Bo
- Stugor 2-4 bäddar
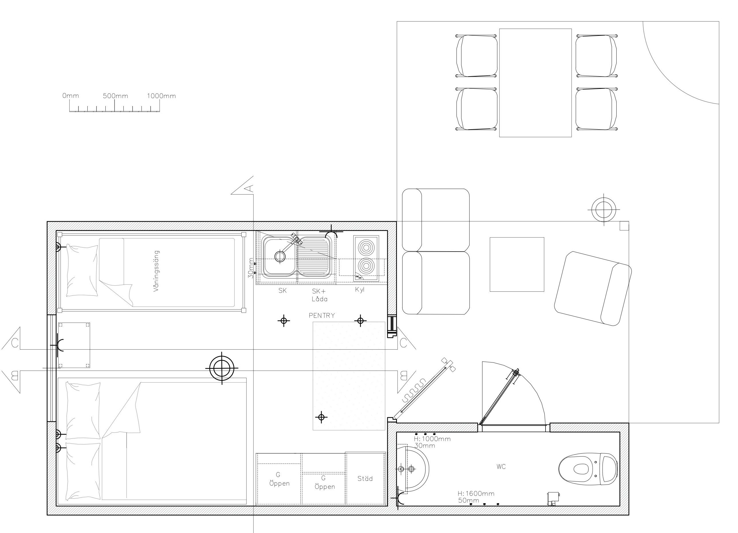
- Stugtyp 5, 13 m², 4 bäddar
Typ 5, 13 m², 4 bäddar
Njut av en härlig semester i våra mysiga parhusstugor! Stugan har en bekväm dubbelsäng och en nedfällbar våningssäng, samt ett praktiskt pentry med kylskåp, frysfack, kaffebryggare och köksutrustning. Här finns även egen WC och TV för en bekväm vistelse. Dusch finns i vårt servicehus bara ett stenkast bort. På den möblerade altanen kan du koppla av och njuta av sommarkvällarna.
Under veckorna 25–33 ingår massor av aktiviteter för hela familjen – fria barnaktiviteter, träning på SportCamp, skate- och kickbikepark samt nöjesshower och minidisco fem kvällar i veckan. Dessutom får du rabatt på badlandet och minigolf.
- Dubbelsäng plus nedfällbar våningssäng (max 100 kg i överslafen)
- Pentry
- WC
- TV
- Köksutrustning
- Kylskåp & frysfack
- Kaffebryggare
- Kuddar & täcken
- Parhus
- Lakan & handdukar medtages eller hyrs för 250:-/set. Objektnummer: 3-6.














Bokningsinformation
Vi har en åldergräns på 23 år för boende på Böda Sand. Det gäller dock ej barnfamilj.
När blir min bokning bindande?
Både Du och vi är bundna till bokningen så snart vi bekräftat den och Du betalat handpenning, då sådan skall erläggas, eller i övriga fall erlagt hela hyran. När du genomför din bokning godkänner du också att vi lagrar dina personuppgifter hos oss, läs mer om detta här.
När skall jag betala?
Priserna som listas i onlinebokning/på faktura är ink. moms. 10 dagar från det att vi skickat en bekräftelse/faktura betalar Du en handpenning. Vid onlinebokning betalas handpenningen direkt. Beloppet räknas av från hyran. Se datum och belopp på fakturan. Resterande summa betalar Du 40 dagar före ankomst. Bokar Du mindre än 40 dagar före ankomstdagen betalar Du hela beloppet inom 10 dagar från det att vi skickat en bekräftelse/faktura, då inget annat anges (se datum och belopp på fakturan).
Vad händer om jag inte betalar i tid?
Efter bokning erhåller Du en faktura med uppgift om Din bokade tomt/stuga samt betalningsdatum. När den första delbetalningen på 20% av köpesumma är gjord är Din bokning bekräftad. Samtliga bokningar ska vara fullt betalade senast 40 dagar innan ankomst. Är betalningen inte oss tillhanda på angivna datum annulleras Din bokning och ingen återbetalning sker på inbetalt belopp.
Vad gäller om jag vill avboka UTAN avbeställningsskydd?
Du kan avboka muntligen eller skriftligen till oss. Om Du inte har tecknat något avbeställningsskydd sker ingen återbetalning av handpenning eller slutlikvid.
Vad gäller om jag vill avboka MED avbeställningsskydd?
Du kan avboka muntligen eller skriftligen till oss. Avbeställningsskyddet måste beställas vid bokningstillfället. Avbeställningsskyddet TRYGG (295 kr) innebär att du kan avboka fram till och med dagen före ankomst och få hyran, med avdrag för avbeställningsskyddets kostnad, återbetald vid uppvisning av läkarintyg eller intyg från myndighet/försäkringsbolag. Detta gäller i följande fall: vid dödsfall, sjukdom eller olycksfall av allvarlig art som drabbar Dig själv, maka, sambo, familj eller medresenär, inkallelse till krigsmakten eller civilförsvaret.
Med avbeställningsskyddet TRYGGARE (495 kr) kan du även välja att avboka fram till 40 dagar innan dina ankomst oavsett anledning (utan att behöva visa läkarintyg) och med avbeställningsskyddet TRYGGAST (795 kr) fram till 7 dagar innan din ankomst oavsett anledning. Efter brytdatumet på 40 eller 7 dagar gäller samma villkor som TRYGG.
Vad händer om jag vill åka hem tidigare?
I det fall jag väljer att lämna min plats/stuga och avbryta min vistelsen tidigare än vad bokningen säger sker ingen återbetalning.
Vad har jag för rättigheter?
Om vi inte tillhandahåller stugan/campingtomten i utlovat skick eller vid rätt tidpunkt och inte heller kan erbjuda Dig likvärdigt hyresobjekt, har Du rätt att säga upp avtalet. Vi måste då återbetala allt det Du har betalat till oss. Istället för att säga upp avtalet kan Du begära att vi sätter ner hyran. Om Du har klagomål skall dessa framföras till oss snarast möjligt. Fel, som uppstår under Din vistelse, bör Du anmäla omgående så att vi kan rätta till dem.
Vad har jag för skyldigheter?
Du ansvarar för att följa regler för åldersgräns: För att bo på Böda Sand ska du ha fyllt 23 år, med undantag för barnfamiljer. Om ni inte reser som barnfamilj behöver samtliga personer ha fyllt 23 år.
Du ansvarar för att följa regler gällande brandskydd: Husvagnen/husbilen/tältet måste placeras så att du har två meter till varje tomtgräns åt de hållen där du har en granne (gäller alltså ej väg). Endast ett boendeekipage är tillåtet per plats, det vill säga en bil och husvagn med förtält, en husbil eller ett tält samt bil.
Du ansvarar för att följa regler gällande tystnad på området. Mellan klockan 23.00 till 07.00 visar du extra hänsyn mot dina grannar.
Du ansvarar för att läsa igenom din bokningsbekräftelse och säkerställa att datum och objektnummer stämmer.
Du måste vårda stugan/campingtomten väl och följa de bestämmelser som gäller. Du ansvarar själv för alla skador som uppstår på stugan och dess inventarier/campingtomten genom att Du eller någon i Ditt sällskap varit vårdslös. Du ansvarar också för att alla som bor eller befinner sig på din plats/stuga följer campingens ordningsregler vad gäller tystnad m.m. Bryter du mot ordningsreglerna har vi rätt att ta ut en störningsavgift som motsvarar de kostnader vi pålagts i samband med detta.
Du får inte använda stugan/campingtomten till något annat än vad som avtalats vid bokningen. Ej heller låta fler personer övernatta än vad som uppgivits vid bokningstillfället. Du måste städa stugan enligt instruktion. Om Du inte gör detta kommer städning att utföras på Din bekostnad.
Naturkatastrofer, krig, strejk m.m.
Både Du och vi har rätt att träda ifrån hyresavtalet om stugan/campingtomten ej kan tillhandahållas pga naturkatastrof, krigshandlingar, arbetsmarknadskonflikt, längre avbrott i vatten- eller energitillförsel, eldsvåda eller liknande händelser som varken Du eller vi kan förutse eller påverka. Vi är i så fall skyldiga att återbetala Dig, med avdrag för den nytta Du kan ha haft av stugan/campingtomten.
Vad händer om vi inte kommer överens?
Vänd Dig till oss med eventuella klagomål. Tänk på att Dina möjligheter att få rättelse kan minska om Du dröjer med att klaga. Om vi inte kommer överens, kan Du vända dig till ARN. Vi reserverar oss för eventuella prisändringar, tryckfel och ändringar som till dagens datum ännu inte är kända.
Vi önskar dig en trevlig vistelse på Böda Sand. Varmt välkomna!
Som gäst på Böda Sand har du fri tillgång till barnaktiviteter, morgongympa, alla lekplatser, studskuddar, skateboardpark, cykelbana, teatrar, kvällsshower på scenen. Välkommen!
Campingplatsen
Välj mellan elplats, elplats med vatten eller tomt utan el. Vi har även rymligare tomter för större ekipage.
Ålder
För att campa på Böda Sand behöver du och ditt sällskap fyllt 23 år - med undantag för barnfamiljer.
Trivsel
Tänk på dina grannar och respektera varandras önskan om lugn och ro, alla tider på dygnet. Det råder nattro på området klockan 23.00-07.00. Parkeringen för dagsbesökare är stängd från 23.00 och endast du som är incheckat gäst och har ditt band på dig har möjlighet att vistas på området. Skulle nattro ej respekteras sker en tillsägelse. Vakterna har rätt att ta ut en störningsavgift i det fall ordningsstörning skulle fortske. De har också mandat och tar beslut om eventuell avhysning.
För en trivsam campingupplevelse är det viktigt att visa hänsyn till varandra. Gå inte över andras campingtomter – tänk på att det är deras tillfälliga hem. Använd vägarna istället och bidra till en trevlig och respektfull atmosfär. Tack!
Säkerhet
Ur brandskyddssynpunkt måste alla våra gäster hålla två meter från sitt boendeekipage till tomtgränsen åt de håll som har granne. Det vill säga, att det är fyra meter mellan alla boendeekipage. Detta är ett krav från Brandskyddsmyndigheten och gäller över hela Öland. Se karta i incheckningsfoldern om hur vagnen ska placeras.
Under högsäsong patrulleras området av vakter och campingvärdar nattetid. Dessa tillkallas via mobil 0706-857291. Vakt skall ovillkorligen lydas.
I receptionen och poolen finns en hjärtstartare. Vid behov kontakta omedelbart 112 och receptionen.
Elbil
Elbilar ska laddas på markerade elbilsladdstationer som finns vid servicehus 5, servicehus 2, parkeringen och vid receptionen. Det är inte tillåtet att ladda sina elbilar via elstolpen på sin plats. Detta för att:
- Stolparna har inte jordfelsbrytare som är anpassade för elbilar vilket innebär en säkerhetsrisk.
- I campingpriset ingår enbart hushållsel.
- Elsäkerhetsverket rekommenderar att man ska ladda elbilar i laddare som är anpassade för elbilsladdning och under inga omständigheter i vanliga eluttag.
- Försäkring för gäst eller anläggning gäller inte om brand uppstår.
Allmänt gällande bokning, in/utcheckning
Efter bokning erhåller Du en faktura med uppgift om Din bokade tomt/stuga samt betalningsdatum. När den första delbetalningen på 20% av köpesumma är gjord är Din bokning bekräftad. Samtliga bokningar ska vara fullt betalade senast 40 dagar innan ankomst. Är betalningen inte oss tillhanda på angivna datum annulleras Din bokning. Ingen bekräftelse på att vi har erhållit betalning skickas ut.
Bokningsavgift tillkommer med 105:- (ej vid onlinebokning)
Avbeställningsskydd kostar 295:-, 495:- eller 795:-beroende på vilket skydd du önskar. Läs mer om våra avbeställningsskydd här. Har du inget avbeställningsskydd gäller ingen återbetalning.
Till varje campingplats får man ha en personbil på området, eventuella övriga bilar får ställas på dagsparkeringen till rådande avgift. Meddela receptionen vid ankomst för att få anvisningar om hur bilen skall registreras. Extra bilar till stuggäster får stå kostnadsfritt på dagsparkeringen, även detta registreras i receptionen vid ankomst. Stugtyp 13-16 samt strandbyn får ha två bilar inne på området.
Stugor
Vecka 26-32 hyra vårs stugor ut hela veckor. Stugtyp 2-8 hyrs ut lördag-lördag och stugtyp 9-strandbyn hyrs ut söndag-söndag. Midsommar hyrs ut torsdag-söndag. Vecka 26 hyrs stugtyp 2-8 ut söndag-lördag. Övriga veckor hyrs stugorna ut dygnsvis. Vi har flera olika typer av stugor. Bestäm Dig hur stor Du önskar, hur många bäddar Du behöver samt vilken standard Du vill ha. Läs om våra olika stugtyper här.
Grillplats finns på flera ställen på stugområdet. Det är endast tillåtet att grilla på grillar, ej på mark eller engångsgrill direkt på mark. Aska från grill tömmes i grillkolsbehållare vid varje servicehus.
Ankomst sker från kl. 16.00 och avresa 11.00.
Rökning är förbjuden i alla stugor. Överträdelse beivras och en debitering på 4000:- tas ut för sanering.
Hund får medtagas i alla stugor utom speciella allergistugor.
Städning görs av gästen. För ej utförd städning debiteras 4000:-
Bil parkeras på numrerad parkeringsplats med samma nummer som stugan (gäller de flesta stugor, vissa stugor har ej numrerade platser).
Miljö
Vi arbetar aktivt för en bättre miljö bland annat genom att vi själva ställer krav på material, leverantörer, energival. Vi återvinner och vi tar vara på och renar vårt eget vatten. Dessutom stödjer vi naturskyddsföreningens arbete för ett bättre Östersjön och WWFs projekt "Rädda Östersjön" i samarbete med Pantamera. Se till att du också hjälper oss i vår miljösatsning med det du kan.
Internet
Området har gratis wifi. Det heter "Böda Sand" i nätverkslistan och du loggar enkelt in med din mailadress.
Ledsagare
Ledsagare har fri entré till badland och övriga aktiviteter.
Hundägande gäster
Håll alltid hunden kopplad.
Det finns en hundrastgård söder om SportCamp. Hundraststigar finns vid motionsspåren strax söder om tennisbanorna samt "motionsslingan" vid bommarna utanför receptionen. Det är förbjudet att rasta sina hundar inne på campingområdet.
Tempererad hunddusch med fön finns i servicehus 5
Skulle det trots allt ”olyckas” på campingområdet så förutsätter vi att alla plockar upp efter sin hund. Påsarna finns dels att köpa i affären och dels att få vid enstaka akutfall i receptionen. Hundpåsarna slängs i hundlatrinerna eller i närmsta molok.
Hundar får inte vistas i något av campingens servicehus (med undantag för hundbadet).
Hundar får inte vistas i våra restauranger av livsmedelshygieniska skäl. Särskilda regler gäller för vissa uteserveringar, fråga restaurangpersonalen gällande deras respektive hundregler.
Hunden får följa med på en del av stranden som är skyltad, dvs söder om kanalen vid kvarter 1 samt norr om kanalen vid kvarter 6. Däremot måste vi be er respektera att hunden inte får vara på resten av strandområdet. Detta gäller även genomfart.
Tänk på att inte lämna hunden i en varm bil eller husvagn. De svettas inte som vi och blir snabbt varma.
Låt inte hunden stå och skälla, det ger bara oss hundägare dåligt rykte i onödan.
Om du hyr bostad av oss ber vi dig vara extra noga med städningen vid avresa så att inga spår efter hundarna finns kvar. Hunden får inte heller vistas i möbler, sängar eller på täcken. Om du inte är säker på att din hund inte hittar på något ofog om den blir lämnad ensam så lämna den inte kvar i stugan. Det är trist att behöva stå för onödig skadegörelse.
I september varje år har vi hundutställning tillsammans med SMÖKK. Boka ditt boende i tid då det ofta är fullbokat.
Allt detta var naturligtvis inget nytt för er, men det skadar aldrig med en påminnelse. Om vi hjälps åt att hålla efter oss själva och varandra så kan även hunden få ha en skön semester. Vi hoppas ni ska trivas hos oss och att ni får en trevlig semester!
Svensk camping
Böda Sand är medlem i Svensk camping. Detta ger oss som campingföretag möjligheten att påverka viktiga frågor som att till exempel motverka höjning av moms på campingboende, campingstandard, gästers säkerhet med mera.
